Image

Vaš novi dom useljiv već na proljeće 2024.

Prizemlje je dio kompleksa koji je otvoren za javnost, i koji će pored stambenog biti ispunjen i poslovnim sadržajima odabranim tako da unaprijede kvalitet svakodnevnog života stanara ali i šire zajednice.

Suteren
Prizemlje
Sprat 1
Sprat 2
Sprat 3
Sprat 4
Image
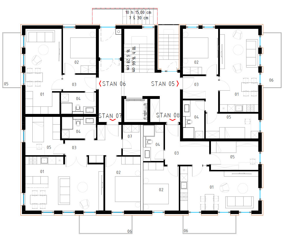
Odaberite stan po vašoj mjeri
PRODANO
STAN 5 56.25 m2
PRODANO
STAN 6 42.55 m2
PRODANO
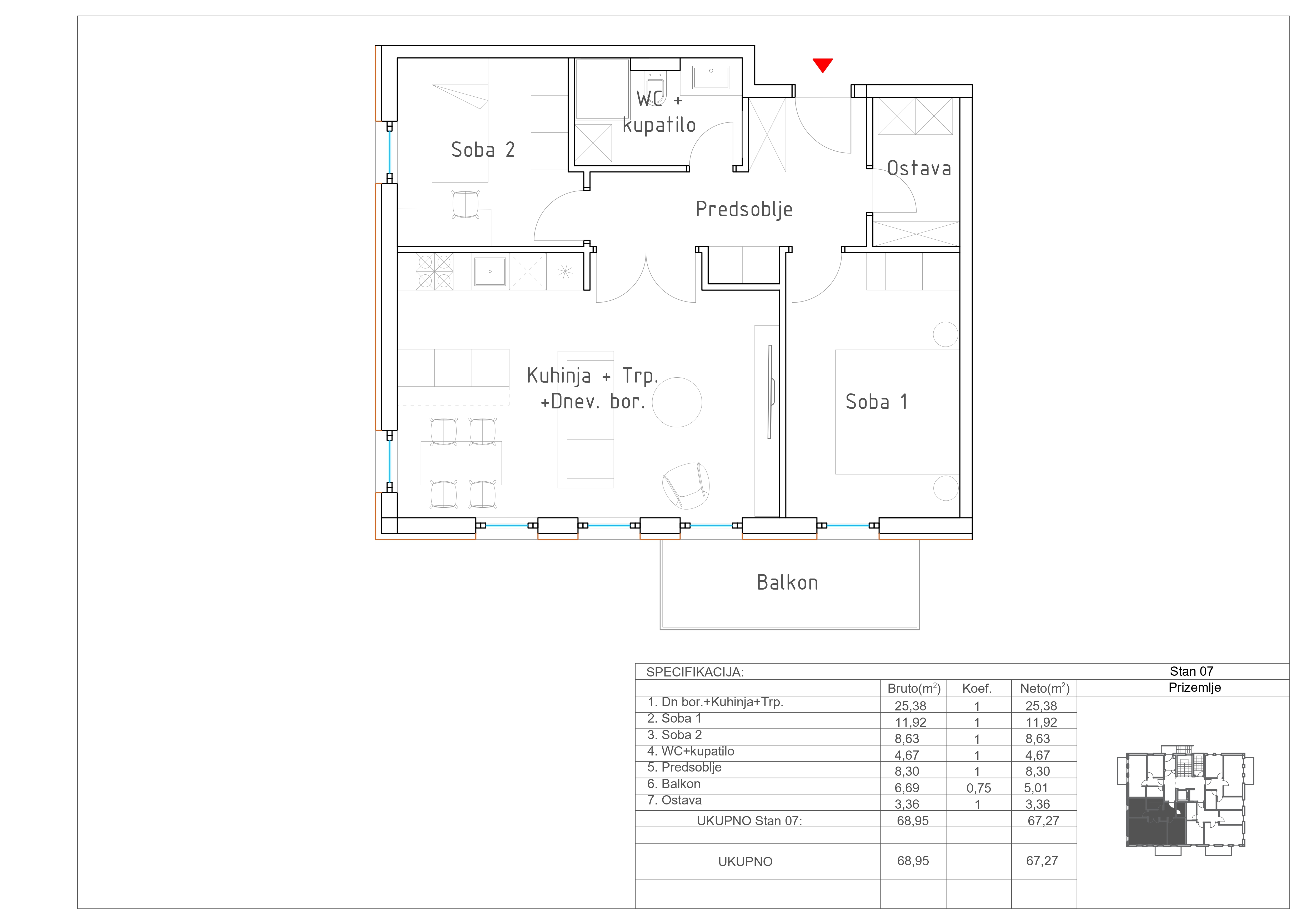
STAN 7 68.95 m2
PRODANO
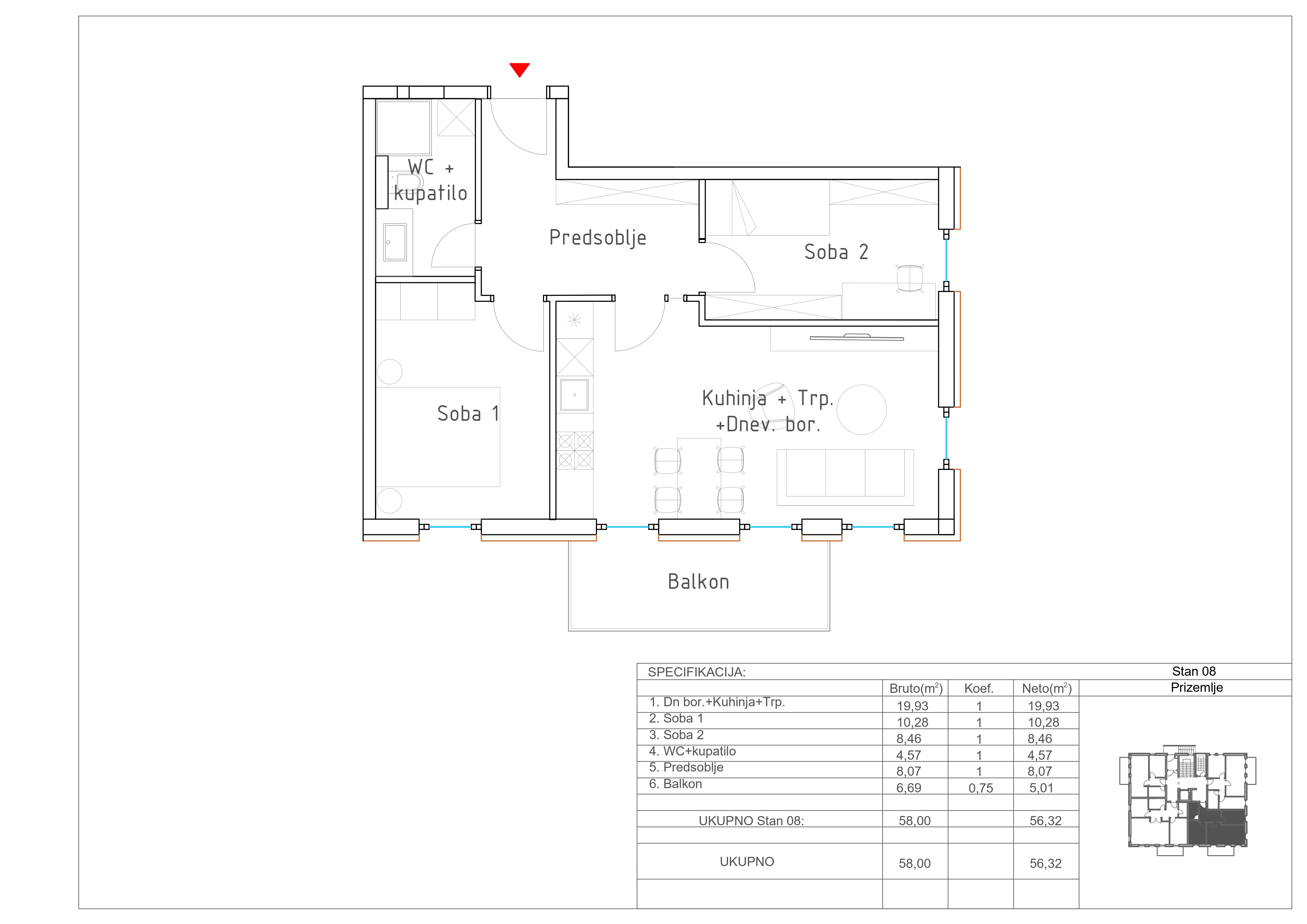
STAN 8 58 m2
Stan 5
56.25 ㎡

PRODANO
Stan 6
42.55 ㎡

PRODANO
Stan 7
68.95 ㎡

PRODANO
Stan 8
58 ㎡

PRODANO

 

 

 

ODLIČNA LOKACIJA

Ova vrhunska kolekcija stanova direktno je pozicionirana prema uređenom zajedničkom dvorištu, a samo je na nekoliko minuta od ključnih atrakcija grada. Mjesto na kome možete da živite i stvarate slobodno je mjesto koje zovete dom.

Image
Image
Image

Projektovana za savršen život

Stambene jedinice u okviru zgrade projektovane su prema raznovrsnim potrebama budućih stanara: od stilski osmišljenih garsonjera, jednosobnih i jednoiposobnih stanova, koji će biti optimalan izbor za investitore, pojedince i mlade parove, do toplih dvosobnih i trosobnih jedinica, idealnih za porodice sa djecom kojima je potreban veći prostor.